
Отправьте нам заявку и мы перезвоним вам в ближайшее время.
| Марка | Котел ТШПМ 1.3 |
| Вид топки | Механическая ТШПМ |
| Мощность, кВт | 1300 |
| Мощность, МВт | 1.3 |
| Мощность, Гкал | 1.1 |
| Отапливаемая площадь, м² | 13000 |
| Отапливаемый объем, м³ | 39000 |
| Вид топлива | Уголь |
| Тяга | Уравновешенная |
| Низшая теплота сгорания топлива, кКал/кг | 5230 |
| КПД, не менее, % | 80 |
| Расход топлива, кг/ч | 287 |
| Расход условного топлива, кг/ч | 215 |
| Температура уходящих газов, °C | 200 |
| Расход теплоносителя среды, м³/ч | 44 |
| Температура воды, °C | 70-95 |
| Давление рабочей среды, МПа (кгс/cм²) | 0.3-0.6 (3.0-6.0) |
| Гидравлическое сопротивление при перепаде t, МПа (кгс/cм²) | 0.1 (1.0) |
| Аэродинамическое сопротивление, Па (мм. вод. ст.) | 330 |
| Габаритные размеры, длина*ширина*высота, мм | 3630*2105*2340 |
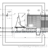
Водогрейный угольный котел 1,3 МВт (1300 кВт) предназначен для отопления и горячего водоснабжения. Устанавливается в механизированных котельных с топками ТШПМ с шурующей планкой и системами топливоподачи и золошлакоудаления. Котел работает с принудительной циркуляцией и принудительной тягой, обеспечиваемой вентилятором и дымососом. Температура нагрева воды в котле равна 115 °С, рабочее давление 3-6 МПа. Основным видом топлива являются каменный и бурый уголь.
Водогрейный угольный котел 1,3 МВт состоит из двух блоков - котел и топка ТШПМ. Трубная система котла гладкотрубная, горизонтальной компоновки. Топочное пространство выполнено газоплотным. Газоплотность топочной камеры обеспечивается вваркой стальной полосы между охлаждаемых труб котла и исключает присосы холодного воздуха в топочную камеру и зону горения топлива. Снаружи котел имеет каркас с установленной на нем теплоизоляцией и обшитый стальными листами. Изоляция котла обеспечивает температуру наружной стенки не более 30 °С, выполняется из плит ПТЭ, устанавливаемых на трубную систему. Водогрейный угольный котел 1,3 МВт предназначен для установки на топку ТШПМ с шурующей планкой. Устанавливается в котельных с механическими золоудалением и топливоподачей.
Водогрейный угольный котел 1,3 МВт имеет минимальные требования к качеству питательной воды. Теплоноситель двигается по трубам со скоростью 1-1,5 м/с, что турбулизирует течение и предотвращает наслоение солей и накипи на стенках трубной системы котла. Коллектора котла обладают множеством переборок, распределяющие поток теплоносителя таким образом, что в котле исключена вероятность образования застойных зон и возникновения теплового напряжения в трубной системе котла и ее локальное перегревание. Большие скорости и многоходовая схема перемещения воды гарантирует высокую маневренность котла по мощности.
Водогрейный угольный котел 1,3 МВт имеет высокий КПД. Данный котел оптимален как для каменных углей, так и для бурых углей. В котле максимально минимизированы потери с механическим и химическим недожогом топлива, с температурой уходящих газов и через ограждающие поверхности.
Конвективные пакеты выполняются в виде регистров и вставляются в котле друг напротив друга в шахматном порядке. Устроенная таким образом поверхность нагрева имеет обширную полезную площадь, участвующую в передаче тепла, и максимальный коэффициент теплопередачи, горячие дымовые газы на выходе из котла охлаждаются до температуры 180-200 °С. Кроме того, организация данным образом трубной системы котла обеспечивает его компактность, что также является его неоспоримым преимуществом.
Водогрейный угольный котел 1,3 МВт с топкой ТШПМ полностью автоматизированный. Топливо транспортером топливоподачи подается в бункер топки ТШПМ. Согласно выставленному автоматикой времени секторный питатель бункера открывается и уголь поступает на блок решетку топки. Одновременно с открытием секторного питателя шурующая планка приводится в действие редуктором топки и перемещает свежее порции топлива по решетке, сдвигая прогоревшее топливо к решетке дожигания и поворотным колосникам в конце топки. Зола и шлак по мере накопления сбрасываются в канал золошлакоудаления и транспортируются в отвал.
Котел поставляется максимальной монтажной готовности. Котельный блок устанавливается на топку ТШПМ, подключается теплоноситель, КИП и запорная арматура, сверху подводится газоход. Для отвода дымовых газов к газоходу подсоединяется дымосос. Воздух подается в топочную камеру через распределительную решетку топки вентилятором.
Водогрейный угольный котел 1,3 МВт поставляется в комплекте с вентилятором поддува, топкой ТШПМ с приводом, топочной дверкой, клапанами предохранительными, вентилями, манометрами, термометрами, терморегулятором ТУДЭ 4М, выключателями КВ, манометром ДМ, рукавом с нитяной оплеткой, паспортом котла и топки, инструкцией по эксплуатации котла и топки.
Основные качества водогрейного угольного котла 1,3 МВт:
Котельный завод производит котлы мощностью 1,3 МВт и на других видах топлива:
Купить водогрейный угольный котел 1,3 МВт вы можете в нашем электронном магазине через форму заказа, либо позвонив по телефону 8-800-700-17-43 в отдел сбыта. Транспортирование котлов и другого котельно-вспомогательного оборудования осуществляется автотранспортом, ж/д полувагонами и речным транспортом. Котельный завод поставляет продукцию во все регионы России и Казахстана. Менеджеры отдела сбыта дают консультацию по всем вопросам подбора оборудования и рассчитывают стоимость доставки до вашего региона.
Водогрейный угольный котел 1,2 МВт с топкой с шурующей планкой ТШПМ. Применяется для отопления и горячего водоснабжения. Комплект поставки - котел, топка с приводом, вентилятор, клапаны, арматура, КИП.
Водогрейный угольный котел 1,4 МВт с топкой с шурующей планкой ТШПМ. Применяется для отопления и горячего водоснабжения. Комплект поставки - котел, топка с приводом, вентилятор, клапаны, арматура, КИП.
Водогрейный котел 1,3 МВт применяется для отопления и горячего водоснабжения. В комплект поставки входит - котел с топкой, вентилятор, клапаны, арматура, КИП. Может изготавливаться в комбинированном исполнении- уголь/дрова.
Водогрейный газовый котел 1,3 МВт работает на газе, дизеле, мазуте. В комплект поставки входит - котел, арматура, клапаны, КИП. Работает с импортными и отечественными горелками.